ミライズホーム > (戸建(売買))路線・駅から探す > 京王電鉄京王線 > 平山城址公園駅 > 新築戸建 日野市平山 120期 全1棟
角地です!昨今日当たりが良すぎる家も選ばれなくなりつつあります
こちらは北東角地です、風通し良好で気持ちの良い暮らしが送れます
駅近くの好立地なのもポイントですよ!
京王線、平山城址公園駅まで徒歩約3分です
お電話のお問合わせはこちらから
042-595-6953
営業時間:9:00-20:00
定休日:定休日無し
〒190-0022
東京都立川市錦町2丁目1-21
| 物件名 | 新築戸建 日野市平山 120期 全1棟 1号棟 | ||
|---|---|---|---|
| 所在地 | 東京都日野市平山5丁目 | ||
| 交通 |
|
||
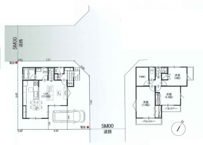
| 間取り/詳細 |
3LDK LDK 17.5帖 1室/洋室 7.5帖 1室/洋室 5.3帖 1室/洋室 5.0帖 1室 |
||
| 接道状況 | 角地(北東 公道 5.0m)(北西 公道 5.0m) | ||
| 価格 | 4,790万円 | 主要採光面 | - |
| 建物面積/坪数 | 85.86㎡/ 25.97坪 | 土地面積/坪数 | 95.78㎡/ 28.97坪 |
| 種別/構造 | 新築一戸建/木造 | 築年月(築年数) | 2026年 1月(予定) |
| 階建 | 2階建 | 地目 | 宅地 |
| 駐車場/料金 | 有(1台)/0円 | 地勢 | - |
| 私道面積 | - | セットバック | - |
| 都市計画 | 市街化区域 | 用途地域 | 第一種低層住居専用 |
| 建ぺい率/容積率 | 50%/100% | 土地権利 | 所有権 |
| 土地の敷金 | - | 保証金 | - |
| 総区画数 | - | 借地料/借地期間 | -/- |
| 現況 | 未着工 | その他の法令上の制限 | 景観法/航空法/平山地区計画※設備仕様プラン変更の場合もございます、予めご了承ください。※現況優先、設備間取りその他気になる箇所などは案内時にお確かめください。※ネット掲載と現況に相違がある場合、現況 |
| 取引態様/引渡時期 | 仲介/相談 | 建築確認番号 | 第000号 |
| 情報更新日 | 2025年11月12日 | 更新予定日 | 2025年11月26日 |
| 免許番号 | 東京都知事 (1) 第109609号 | ||
| 設備条件 |
|
||
| 備考 | 【贅沢な暮らしにぴったり設備が魅力】 ◆システムキッチン3口コンロですのでお料理もサクサクはかどります。 ◆複層ガラスなので冬の結露も多少は予防できます! ◆シャワー付きの洗面台なので朝シャンプーも快適に洗面台で可能です♪ ◆浴室乾燥機付きの浴室なので、雨の日のお洗濯や寒い日のバスタイムも快適です♪ ◆温水シャワー付きトイレですので、いつでも気持ちよく過ごせます。 ◆セキュリティ安全な玄関ドアですので、お子様のお留守番にも安心です。 ◇資料請求、ご案内希望はお気軽に、時間外対応ご予約ください◇ ※設備仕様プラン変更の場合もございます、予めご了承ください。 ※設備間取りその他気になる箇所などは案内時にお確かめください。 ◇住宅ローン不安なお客様◇ ・他社様でローンが通らなかったお客様 ・持病でお薬を飲んでいるお客様 ・持ち家をあきらめているお客様 ・購入できるか?ご不安なお客様 ぜひミライズホームに一度ご相談下さい☆彡 豊富な提携金融機関から、お客様に合ったプランをコンサルティング致します! 今のお悩みをぜひ聞かせてください☆彡 ◇現地案内会を開催中◇ 平日・休日問わず、いつでもご見学が出来ます♪ ミライズホーム株式会社は、 お客様に寄り添って、お客様のご都合に合わせていつでもご案内させて頂きます。 お仕事終わりなどの夜間や早朝などお気軽にご相談ください♪ (時間外の対応は、事前にご予約を頂いたお客様限定のサービスです) ◆最寄りの駅、ご自宅への無料送迎サービス♪ ◆お子様がいらっしゃるご家族様チャイルドシート有り♪ ◆ご両親様揃ってのご見学も最大7人乗りの大型車でご案内♪ ☆実際に見て、触れて感じる 安心のお住まい探しを体験して下さい♪ ☆物件情報だけでなく、地域の特色などなど エリア情報もお伝え出来たら嬉しいです♪ 当社ミライズホーム株式会社 スタッフ一同 お客様1人1人に合った、『明るい未来図』を ご提案させて頂きます。 お気軽にお問合せくださいませ♪ お待ちしております♪ |
||
お電話のお問合わせはこちらから
042-595-6953
営業時間:9:00-20:00
定休日:定休日無し
〒190-0022
東京都立川市錦町2丁目1-21










(※元利均等方式 金利5.00%まで ※返済年数5~35年まで入力できます)
(※ボーナスは年2回で計算しています。1000万円まで入力できます)

■日野市立平山小学校
約476m/6分

■日野市立平山中学校
約828m/11分

■栄光保育園
約172m/3分

■日野市立第二幼稚園
約572m/8分

■マックスバリュエクスプレス平山団地店
約608m/8分

■スーパーアルプス 南平店
約1120m/14分

■ヤオコー 日野南平店
約1452m/19分

■しまむら
約1561m/20分

■セブンイレブン 日野平山6丁目店
約313m/4分

■クリエイトSD(エス・ディー) 日野豊田店
約1239m/16分

■多摩平の森
約2359m/30分

■多摩信用金庫南平支店
約1521m/20分

■七生郵便局
約264m/4分

■豊田駅
約1679m/21分

■平山城址公園
約1372m/18分

■沢田公園
約491m/7分

■東京都立大学図書館日野館
約2508m/32分

■日野市立平山図書館
約207m/3分
お電話のお問合わせはこちらから
042-595-6953
営業時間:9:00-20:00
定休日:定休日無し
〒190-0022
東京都立川市錦町2丁目1-21
※地図上に表示される物件の位置は付近住所に所在することを表すものであり、実際の物件所在地とは異なる場合がございます。