ミライズホーム > (戸建(売買))路線・駅から探す > 西武鉄道西武拝島線 > 武蔵砂川駅 > 中古戸建 昭島市中神町 全1棟
内外観リフォーム済、全室6帖以上広い家
屋根付きカーポート、玄関広々嬉しい
各室収納豊富で広さもあり家族で仲良く
暮らせるお家です♪キッチンも広く使えます
ぜひ1度ご見学ご予約くださいね
お電話のお問合わせはこちらから
042-595-6953
営業時間:9:00-20:00
定休日:定休日無し
〒190-0022
東京都立川市錦町2丁目1-21
| 物件名 | 中古戸建 昭島市中神町 全1棟 1号棟 | ||
|---|---|---|---|
| 所在地 | 東京都昭島市中神町1375−10 | ||
| 交通 |
|
||
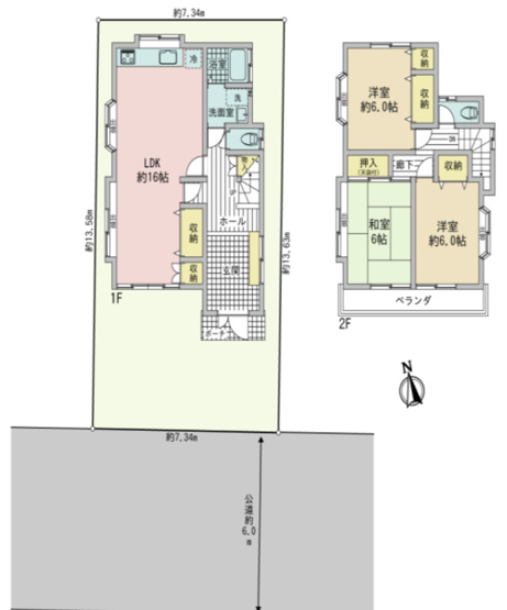
| 間取り/詳細 |
3LDK LDK 16.0帖 1室/洋室 6.0帖 1室/洋室 6.0帖 1室/和室 6.0帖 1室 |
||
| 接道状況 | 一方(南 公道 6.0m) | ||
| 価格 | 3,580万円 | 主要採光面 | - |
| 建物面積/坪数 | 89.70㎡/ 27.13坪 | 土地面積/坪数 | 100.00㎡/ 30.24坪 |
| 種別/構造 | 中古一戸建/木造 | 築年月(築年数) | 1996年 3月(築29年) |
| 階建 | 2階建 | 地目 | 宅地 |
| 駐車場/料金 | 有(1台)/0円 | 地勢 | - |
| 私道面積 | - | セットバック | - |
| 都市計画 | 市街化区域 | 用途地域 | 第一種中高層住居専用 |
| 建ぺい率/容積率 | 60%/200% | 土地権利 | 所有権 |
| 土地の敷金 | - | 保証金 | - |
| 総区画数 | 1区画 | 借地料/借地期間 | -/- |
| 現況 | 空家 | その他の法令上の制限 | 景観法/航空法/既存住宅保険加入予定登録免許税軽減措置利用可 ※設備仕様プラン変更の場合もございます。※現況優先、設備間取りその他気になる箇所などは案内時にお確かめください。※ネット掲載と現況に相違が |
| 取引態様/引渡時期 | 仲介/即時 | 建築確認番号 | - |
| 情報更新日 | 2026年02月03日 | 更新予定日 | 2026年02月17日 |
| 免許番号 | 東京都知事 (1) 第109609号 | ||
| 設備条件 |
|
||
| 備考 | ◇資料請求、ご案内希望はお気軽に、時間外対応ご予約ください◇ ※設備仕様プラン変更の場合もございます、予めご了承ください。 ※設備間取りその他気になる箇所などは案内時にお確かめください。 ◇住宅ローン不安なお客様◇ ・他社様でローンが通らなかったお客様 ・持病でお薬を飲んでいるお客様 ・持ち家をあきらめているお客様 ・購入できるか?ご不安なお客様 ぜひミライズホームに一度ご相談下さい☆彡 豊富な提携金融機関から、お客様に合ったプランをコンサルティング致します! 今のお悩みをぜひ聞かせてください☆彡 ◇現地案内会を開催中◇ 平日・休日問わず、いつでもご見学が出来ます♪ ミライズホーム株式会社は、 お客様に寄り添って、お客様のご都合に合わせていつでもご案内させて頂きます。 お仕事終わりなどの夜間や早朝などお気軽にご相談ください♪ (時間外の対応は、事前にご予約を頂いたお客様限定のサービスです) ◆最寄りの駅、ご自宅への無料送迎サービス♪ ◆お子様がいらっしゃるご家族様チャイルドシート有り♪ ◆ご両親様揃ってのご見学も最大7人乗りの大型車でご案内♪ ☆実際に見て、触れて感じる 安心のお住まい探しを体験して下さい♪ ☆物件情報だけでなく、地域の特色などなど エリア情報もお伝え出来たら嬉しいです♪ 当社ミライズホーム株式会社 スタッフ一同 お客様1人1人に合った、『明るい未来図』を ご提案させて頂きます。 お気軽にお問合せくださいませ♪ お待ちしております♪ |
||
お電話のお問合わせはこちらから
042-595-6953
営業時間:9:00-20:00
定休日:定休日無し
〒190-0022
東京都立川市錦町2丁目1-21










(※元利均等方式 金利5.00%まで ※返済年数5~35年まで入力できます)
(※ボーナスは年2回で計算しています。1000万円まで入力できます)

■昭島市立武蔵野小学校
約530m/7分

■上砂保育園
約898m/12分

■ふじこどもえん藤幼稚園
約759m/10分

■TAIRAYA中神店
約123m/2分

■スーパーはしもと
約404m/6分

■ジェーソン 武蔵村山店
約1733m/22分

■セブンイレブン 立川東文化通り店
約234m/3分

■ファミリーマート 昭島東文化通り店
約358m/5分

■サンドラッグ 中神店
約164m/3分

■昭島病院
約1598m/20分

■JA東京みどり本店
約842m/11分

■西武信用金庫中神支店
約1409m/18分

■立川大山郵便局
約500m/7分

■立川市西砂図書館
約1958m/25分

■ファンタジーキッズリゾート 武蔵村山店
約1862m/24分

■美の宮公園
約425m/6分

■見影橋公園
約1707m/22分

■昭和の森ゴルフコース
約1897m/24分

■無添 くら寿司 立川店
約2045m/26分

■ガスト 砂川三番店(から好し取扱店)
約1572m/20分
お電話のお問合わせはこちらから
042-595-6953
営業時間:9:00-20:00
定休日:定休日無し
〒190-0022
東京都立川市錦町2丁目1-21
※地図上に表示される物件の位置は付近住所に所在することを表すものであり、実際の物件所在地とは異なる場合がございます。