ミライズホーム > (戸建(売買))路線・駅から探す > JR青梅線 > 拝島駅 > 中古戸建 昭島市緑町 2丁目
【即ご見学可能】リフォーム済美中古☆彡
リノベーション済で快適生活!陽当良好
オール電化住宅(太陽光発電システム有り)
「拝島」駅歩17分/3路線利用可能な好立地
リフォーム済で生まれ変わった美しい邸宅で新生活を!
*立地と間取りと設備仕様のバランスが良く納得価格で購入*
*時間外対応はご予約を!ローンのご相談・資金計画承りま
お電話のお問合わせはこちらから
042-595-6953
営業時間:9:00-20:00
定休日:定休日無し
〒190-0022
東京都立川市錦町2丁目1-21
| 物件名 | 中古戸建 昭島市緑町 2丁目 1号棟 | ||
|---|---|---|---|
| 所在地 | 東京都昭島市緑町2丁目 | ||
| 交通 |
|
||
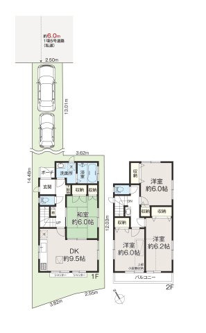
| 間取り/詳細 |
4DK DK 9.5帖 1室/和室 6.0帖 1室/洋室 6.2帖 1室/洋室 6.0帖 1室/和室 6.0帖 1室 3LDK+ロフト |
||
| 接道状況 | 一方(西 私道 5.0m 間口 2.5m) | ||
| 価格 | 3,290万円 | 主要採光面 | - |
| 建物面積/坪数 | 86.74㎡/ 26.23坪 | 土地面積/坪数 | 109.32㎡/ 33.06坪 |
| 種別/構造 | 中古一戸建/木造 | 築年月(築年数) | 2001年 2月(築24年) |
| 階建 | 2階建 | 地目 | 宅地 |
| 駐車場/料金 | 有(2台)/0円 ※駐車台数は車種によります。 | 地勢 | - |
| 私道面積 | 242.95㎡ | セットバック | - |
| 都市計画 | 市街化区域 | 用途地域 | 第一種低層住居専用 |
| 建ぺい率/容積率 | 40%/80% | 土地権利 | 所有権 |
| 土地の敷金 | - | 保証金 | - |
| 総区画数 | 1区画 | 借地料/借地期間 | -/- |
| 現況 | 空家 | その他の法令上の制限 | 景観法/航空法/私道持分有り:77㎡・42.98㎡・123㎡(合計242.98㎡)の各154分の1 ※設備仕様プラン変更の場合もございます。予めご了承ください。※現況優先、設備間取りその他気になる箇所 |
| 取引態様/引渡時期 | 仲介/相談 | 建築確認番号 | - |
| 情報更新日 | 2025年11月04日 | 更新予定日 | 2025年11月18日 |
| 免許番号 | 東京都知事 (1) 第109609号 | ||
| 設備条件 |
|
||
| 備考 | \日当たりが心地よく毎日気持ちよく生活/ ◆広いリビングではご家族様全員でくつろぐゆとり◎ ◆みんなのお荷物を仲良く保管できる各居室収納 ◆家事導線が良く忙しい朝もストレスなく過ごせます \暮らしやすい充実な設備が魅力的/ ◆内装が自慢の我が家、インテリアはどのようなものを選択しましょう ◆キッチン、お掃除やお料理がしやすい収納豊富で高機能 ◆お客様の目でしっかりご確認くださいませ、ご質問もお気軽にどうぞ! ◇資料請求、ご案内希望はお気軽に、時間外対応ご予約ください◇ ※設備仕様プラン変更の場合もございます、予めご了承ください。 ※設備間取りその他気になる箇所などは案内時にお確かめください。 ◇住宅ローン不安なお客様◇ ・他社様でローンが通らなかったお客様 ・持病でお薬を飲んでいるお客様 ・持ち家をあきらめているお客様 ・購入できるか?ご不安なお客様 ぜひミライズホームに一度ご相談下さい☆彡 豊富な提携金融機関から、お客様に合ったプランをコンサルティング致します! 今のお悩みをぜひ聞かせてください☆彡 ◇現地案内会を開催中◇ 平日・休日問わず、いつでもご見学が出来ます♪ ミライズホーム株式会社は、 お客様に寄り添って、お客様のご都合に合わせていつでもご案内させて頂きます。 お仕事終わりなどの夜間や早朝などお気軽にご相談ください♪ (時間外の対応は、事前にご予約を頂いたお客様限定のサービスです) ◆最寄りの駅、ご自宅への無料送迎サービス♪ ◆お子様がいらっしゃるご家族様チャイルドシート有り♪ ◆ご両親様揃ってのご見学も最大7人乗りの大型車でご案内♪ ☆実際に見て、触れて感じる 安心のお住まい探しを体験して下さい♪ ☆物件情報だけでなく、地域の特色などなど エリア情報もお伝え出来たら嬉しいです♪ 当社ミライズホーム株式会社 スタッフ一同 お客様1人1人に合った、『明るい未来図』を ご提案させて頂きます。 お気軽にお問合せくださいませ♪ お待ちしております♪ |
||
お電話のお問合わせはこちらから
042-595-6953
営業時間:9:00-20:00
定休日:定休日無し
〒190-0022
東京都立川市錦町2丁目1-21










(※元利均等方式 金利5.00%まで ※返済年数5~35年まで入力できます)
(※ボーナスは年2回で計算しています。1000万円まで入力できます)

■昭島市立拝島第三小学校
約895m/12分

■昭島市立拝島中学校
約265m/4分

■昭島すみれ幼稚園
約751m/10分

■ゆりかご保育園
約544m/7分

■エコス TAIRAYA(たいらや) 拝島店
約642m/9分

■セブンイレブン 昭島緑町2丁目店
約337m/5分

■ドラッグセイムス 昭島店
約285m/4分

■東京西徳洲会病院
約549m/7分

■昭島緑郵便局
約145m/2分

■マルフジ昭島市役所通り店
約1317m/17分

■MORITOWN(モリタウン)
約1707m/22分

■ジェーソン 福生熊川店
約1655m/21分

■島忠HOME'S(島忠ホームズ) 昭島店
約1846m/24分

■JA東京みどり拝島支店
約698m/9分

■昭島市民図書館昭和分館
約1107m/14分

■昭島市役所
約1223m/16分

■拝島公園
約1118m/14分
お電話のお問合わせはこちらから
042-595-6953
営業時間:9:00-20:00
定休日:定休日無し
〒190-0022
東京都立川市錦町2丁目1-21
※地図上に表示される物件の位置は付近住所に所在することを表すものであり、実際の物件所在地とは異なる場合がございます。