ミライズホーム > (戸建(売買))路線・駅から探す > JR青梅線 > 昭島駅 > 新築戸建 昭島市緑町 第6 全1棟
【限定1棟】4LDK*車2台*庭付
太陽光発電搭載で地球に優しいお家
JR青梅線「昭島」駅利用!徒歩19分
*立地と間取りと設備仕様のバランスが良く納得価格で購入*
住宅性能評価もついて安心邸宅!色んな不安を解消しますよ♪
*時間外対応はご予約を!ローンのご相談・資金計画承ります☆
お電話のお問合わせはこちらから
042-595-6953
営業時間:9:00-20:00
定休日:定休日無し
〒190-0022
東京都立川市錦町2丁目1-21
| 物件名 | 新築戸建 昭島市緑町 第6 全1棟 1号棟 | ||
|---|---|---|---|
| 所在地 | 東京都昭島市緑町3丁目 | ||
| 交通 |
|
||
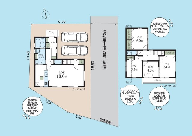
| 間取り/詳細 |
3LDK LDK 18.0帖 1室/洋室 6.0帖 1室/洋室 6.0帖 1室/洋室 5.5帖 1室/洋室 4.5帖 1室 |
||
| 接道状況 | 一方(南東 私道 4.5m 間口 15.6m) | ||
| 価格 | 4,180万円 | 主要採光面 | - |
| 建物面積/坪数 | 98.82㎡/ 29.89坪 | 土地面積/坪数 | 134.80㎡/ 40.77坪 |
| 種別/構造 | 新築一戸建/木造 | 築年月(築年数) | 2025年 7月(新築) |
| 階建 | 2階建 | 地目 | 山林 |
| 駐車場/料金 | 有(2台)/0円 | 地勢 | - |
| 私道面積 | 179.00㎡ | セットバック | - |
| 都市計画 | 市街化区域 | 用途地域 | 第一種低層住居専用 |
| 建ぺい率/容積率 | 40%/80% | 土地権利 | 所有権 |
| 土地の敷金 | - | 保証金 | - |
| 総区画数 | 1区画 | 借地料/借地期間 | -/- |
| 現況 | 完成済み | その他の法令上の制限 | 景観法/航空法/※設備仕様プラン変更の場合もございます。※現況優先、設備間取りその他気になる箇所などは案内時にお確かめください。※ネット掲載と現況に相違がある場合、現況を優先いたします。気になる箇所は |
| 取引態様/引渡時期 | 仲介/即時 | 建築確認番号 | - |
| 情報更新日 | 2025年11月12日 | 更新予定日 | 2025年11月26日 |
| 免許番号 | 東京都知事 (1) 第109609号 | ||
| 設備条件 |
|
||
| 備考 | \日当たりが心地よく毎日気持ちよく生活/ ◆広いリビングではご家族様全員でくつろぐゆとり◎ ◆みんなのお荷物を仲良く保管できる各居室収納 ◆家事導線が良く忙しい朝もストレスなく過ごせます \暮らしやすい充実な設備が魅力的/ ◆浴室乾燥機付きお風呂♪毎日の疲れを癒し、雨の日のお洗濯も安心 ◆浄水器付きキッチン、お掃除やお料理がしやすい収納豊富 ◆国が認めた住宅性能評価付き、耐震等級も安心な造り 【贅沢な暮らしにぴったり設備が魅力】 ◆システムキッチン3口コンロですのでお料理もサクサクはかどります。 ◆複層ガラスなので冬の結露も多少は予防できます! ◆シャワー付きの洗面台なので朝シャンプーも快適に洗面台で可能です♪ ◆浴室乾燥機付きの浴室なので、雨の日のお洗濯や寒い日のバスタイムも快適です♪ ◆温水シャワー付きトイレですので、いつでも気持ちよく過ごせます。 ◆セキュリティ安全な玄関ドアですので、お子様のお留守番にも安心です。 ◇資料請求、ご案内希望はお気軽に、時間外対応ご予約ください◇ ※設備仕様プラン変更の場合もございます、予めご了承ください。 ※設備間取りその他気になる箇所などは案内時にお確かめください。 ◇住宅ローン不安なお客様◇ ・他社様でローンが通らなかったお客様 ・持病でお薬を飲んでいるお客様 ・持ち家をあきらめているお客様 ・購入できるか?ご不安なお客様 ぜひミライズホームに一度ご相談下さい☆彡 豊富な提携金融機関から、お客様に合ったプランをコンサルティング致します! 今のお悩みをぜひ聞かせてください☆彡 ◇現地案内会を開催中◇ 平日・休日問わず、いつでもご見学が出来ます♪ ミライズホーム株式会社は、 お客様に寄り添って、お客様のご都合に合わせていつでもご案内させて頂きます。 お仕事終わりなどの夜間や早朝などお気軽にご相談ください♪ (時間外の対応は、事前にご予約を頂いたお客様限定のサービスです) ◆最寄りの駅、ご自宅への無料送迎サービス♪ ◆お子様がいらっしゃるご家族様チャイルドシート有り♪ ◆ご両親様揃ってのご見学も最大7人乗りの大型車でご案内♪ ☆実際に見て、触れて感じる 安心のお住まい探しを体験して下さい♪ ☆物件情報だけでなく、地域の特色などなど エリア情報もお伝え出来たら嬉しいです♪ 当社ミライズホーム株式会社 スタッフ一同 お客様1人1人に合った、『明るい未来図』を ご提案させて頂きます。 お気軽にお問合せくださいませ♪ お待ちしております♪ |
||
お電話のお問合わせはこちらから
042-595-6953
営業時間:9:00-20:00
定休日:定休日無し
〒190-0022
東京都立川市錦町2丁目1-21










(※元利均等方式 金利5.00%まで ※返済年数5~35年まで入力できます)
(※ボーナスは年2回で計算しています。1000万円まで入力できます)

■拝島保育園
約753m/10分

■昭島すみれ幼稚園
約753m/10分

■昭島市立拝島第一小学校
約545m/7分

■昭島市立拝島中学校
約575m/8分

■ローソン 昭島緑町一丁目店
約378m/5分

■マルフジ昭島市役所通り店
約945m/12分

■OK(オーケー) 昭島店
約1073m/14分

■ドラッグセイムス 昭島店
約981m/13分

■東京西徳洲会病院
約1103m/14分

■ショッピングセンター モリタウン
約1820m/23分

■ジェーソン 福生熊川店
約1832m/23分

■島忠HOME'S(島忠ホームズ) 昭島店
約1318m/17分

■サンドラッグ 昭島松原町店
約1254m/16分

■JA東京みどり拝島支店
約492m/7分

■西武信用金庫拝島支店
約1621m/21分

■昭島緑郵便局
約792m/10分

■昭島市民図書館昭和分館
約1224m/16分

■昭島市役所
約765m/10分

■拝島公園
約609m/8分

■ニトリ 八王子店
約4285m/54分
お電話のお問合わせはこちらから
042-595-6953
営業時間:9:00-20:00
定休日:定休日無し
〒190-0022
東京都立川市錦町2丁目1-21
※地図上に表示される物件の位置は付近住所に所在することを表すものであり、実際の物件所在地とは異なる場合がございます。