ミライズホーム > (土地(売買))路線・駅から探す > JR中央線 > 立川駅 > 建築条件無し売地 立川市栄町 5期 全5区画
【全5区画】建築条件無し売地≪整形地≫
請負もOK/都市ガス/日当良好
理想的なマイホームを一緒に考えませんか?
立川市栄町でとても開放的な売地をご紹介中です^^♪
建築条件無しでお好みのハウスメーカー工務店OK!ご紹介も♪
*資料請求、現地見学、プラン説明会お気軽にご用命ください*
お電話のお問合わせはこちらから
042-595-6953
営業時間:9:00-20:00
定休日:定休日無し
〒190-0022
東京都立川市錦町2丁目1-21
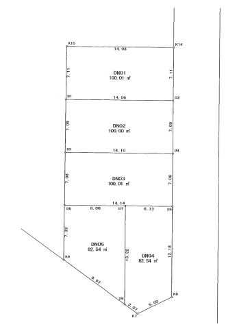
| 物件名 | 建築条件無し売地 立川市栄町 5期 全5区画 5号区 | ||
|---|---|---|---|
| 所在地 | 東京都立川市栄町3丁目 | ||
| 交通 |
|
||
| 接道状況 | 一方(東 公道 6.0m 間口 8.1m) | ||
| 価格 | 3,280万円 | ||
| 種別/構造 | 売地/- | 土地面積/坪数 | 82.54㎡/ 24.96坪 |
| 地勢 | - | 地目 | 畑 |
| セットバック | - | 私道面積 | - |
| 用途地域 | 第一種低層住居専用 | 都市計画 | 市街化区域 |
| 土地権利 | 所有権 | 建ぺい率/容積率 | 40%/80% |
| 保証金 | - | 土地の敷金 | - |
| 借地料/借地期間 | -/- | 総区画数 | 4区画 |
| 取引態様/引渡時期 | 仲介/相談 | 現況 | 更地 |
| 情報更新日 | 2025年11月04日 | 更新予定日 | 2025年11月18日 |
| 免許番号 | 東京都知事 (1) 第109609号 | ||
| 設備条件 |
|
||
| 備考 | ■建築条件なし■ 建築条件付売地ではございません!お好みのハウスメーカーで建築できます♪ハウスメーカーさんのご紹介も出来ますので一緒に理想の住まいを実現させましょう♪ ■建物プラン例あり■ 土地に合わせた建物プランございますので実際に建ったときのイメージがしやすいです!ご要望・ご相談等何でもお気軽にお問合せ下さいませ♪ ~建築条件無し!こちらのメリット~ ◆お好みの工務店様やハウスメーカー様をご選択いただけます ◆ミライズホームのお客様限定でデザインハウスメーカー紹介可♪ \何部屋必要?+駐車場+お庭付きのデザイナーズ新邸/ ◆日当たりや風通しがご希望のお客様へ ◆建具やクロス照明など細部までこだわった理想住宅を一緒に♪ ◆お客様の夢のマイホームに関してご要望をお聞かせください♪ ◇資料請求、ご案内希望はお気軽に、時間外対応ご予約ください◇ ※設備仕様プラン変更の場合もございます、予めご了承ください。 ※設備間取りその他気になる箇所などは案内時にお確かめください。 ◇住宅ローン不安なお客様◇ ・他社様でローンが通らなかったお客様 ・持病でお薬を飲んでいるお客様 ・持ち家をあきらめているお客様 ・購入できるか?ご不安なお客様 ぜひミライズホームに一度ご相談下さい☆彡 豊富な提携金融機関から、お客様に合ったプランをコンサルティング致します! 今のお悩みをぜひ聞かせてください☆彡 ◇現地案内会を開催中◇ 平日・休日問わず、いつでもご見学が出来ます♪ ミライズホーム株式会社は、 お客様に寄り添って、お客様のご都合に合わせていつでもご案内させて頂きます。 お仕事終わりなどの夜間や早朝などお気軽にご相談ください♪ (時間外の対応は、事前にご予約を頂いたお客様限定のサービスです) ◆最寄りの駅、ご自宅への無料送迎サービス♪ ◆お子様がいらっしゃるご家族様チャイルドシート有り♪ ◆ご両親様揃ってのご見学も最大7人乗りの大型車でご案内♪ ☆実際に見て、触れて感じる 安心のお住まい探しを体験して下さい♪ ☆物件情報だけでなく、地域の特色などなど エリア情報もお伝え出来たら嬉しいです♪ 当社ミライズホーム株式会社 スタッフ一同 お客様1人1人に合った、『明るい未来図』を ご提案させて頂きます。 お気軽にお問合せくださいませ♪ お待ちしております♪ |
||
お電話のお問合わせはこちらから
042-595-6953
営業時間:9:00-20:00
定休日:定休日無し
〒190-0022
東京都立川市錦町2丁目1-21










(※元利均等方式 金利5.00%まで ※返済年数5~35年まで入力できます)
(※ボーナスは年2回で計算しています。1000万円まで入力できます)

■栄保育園
約140m/2分

■立川みどり幼稚園
約754m/10分

■立川市立南砂小学校
約877m/11分

■立川市立立川第二中学校
約955m/12分

■いなげや 立川栄町店
約807m/11分

■ららぽーと立川立飛
約1633m/21分

■サンドラッグ 国分寺西町店
約943m/12分

■ファミリーマート 国立北店
約1136m/15分

■業務スーパー 国立弁天通り店
約878m/11分

■ローソン 立川栄町四丁目店
約860m/11分

■IKEA立川
約1973m/25分

■ケーズデンキ 立川店
約1273m/16分

■高島屋 立川店
約1791m/23分

■MEGAドン・キホーテ立川店
約1610m/21分

■スターバックスコーヒー 立川若葉店
約1941m/25分
■たちかわファミリークリニック
約926m/12分
■藤井医院
約1101m/14分
■大東京信用組合 立川支店
約752m/10分
■立川栄郵便局
約697m/9分
■立川市高松図書館
約1171m/15分
お電話のお問合わせはこちらから
042-595-6953
営業時間:9:00-20:00
定休日:定休日無し
〒190-0022
東京都立川市錦町2丁目1-21
※地図上に表示される物件の位置は付近住所に所在することを表すものであり、実際の物件所在地とは異なる場合がございます。